Proprietate cu potențial excepțional – locație strategică Sibiu

470.000 €

Central, Sibiu

Sup. utilă / mp. utili:
638 mp
Tip prop.:
Showroom
Niv.:
1
  • • Comision 0%
  • • Locație exactă

Descriere spațiu comercial

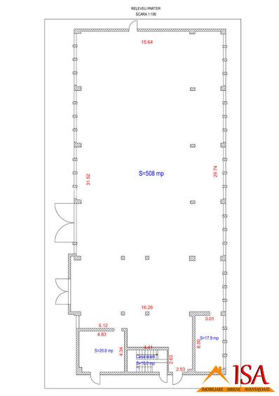
Proprietate cu potențial excepțional de dezvoltare – locație centrală Sibiu! O oportunitate rară pentru dezvoltatori, investitori sau antreprenori care caută un spațiu versatil într-o zonă strategică! Agenția Imobiliară ISA vă propune spre vânzare un spațiu comercial versatil situat într-o zonă cu potențial de dezvoltare. CARACTERISTICI PRINCIPALE - Suprafață construită generoasă Parter: 508 mp Etaj: 130 mp - Posibilitate de etajare pentru extinderea spațiului construit pe toată amprenta la sol - Teren liber aferent: 700 mp, ideal pentru extindere, amenajare parcare sau spații verzi - Structură solidă: Construcție robustă, perfectă pentru reconversie DESTINAȚII POSIBILE - Centru medical - Clinică privată - Spațiu comercial - Birouri - Centru educațional sau showroom - Alte proiecte cu destinație publică sau privată AVANTAJE LOCAȚIE - Poziționare centrală, cu acces rapid la: - Artere rutiere principale - Transport public - Infrastructură urbană completă - Vizibilitate excelentă și acces facil pentru clienți sau parteneri de afaceri OPORTUNITATE DE INVESTIȚIE - Preț de vânzare: 470.000 €uro Această proprietate este IDEALĂ pentru cei care caută: - Un spațiu cu valoare adăugată - Libertate de proiectare și reconversie - O amplasare strategică ce garantează viitoare creșteri de valoare VREI SĂ VEZI CUM ARATĂ? TE INVITĂM LA VIZIONARE!
Citește mai mult Citește mai puțin
Nemodernizat

Detalii spațiu comercial

ID anunț: X5VE04030 Copiat! 256698931 Copiat!
Actualizat în: 14 Aprilie 2026
Regim înălțime: P+1E
Stadiu construcție: Există
Recomandare utilizare: Pentru investiție
Suprafață teren: 700 mp
Vizionare cu programare: Da

Utilități

Utilități
Apă Canalizare Curent
Comision
0%

Puncte de interes

Mijloace transport
bus-station
Alba Iulia
Stații autobuz aprox. 56 m
bus-station
MOL
Stații autobuz aprox. 119 m
bus-station
Transilvaniei
Stații autobuz aprox. 313 m
bus-station
Scandia
Stații autobuz aprox. 407 m
Școală
school
Liceul Tehnic Textil
Școli aprox. 162 m
university
Laboratoare ULBS
Universități aprox. 254 m
school
Scoala Generala Nr. 15
Școli aprox. 300 m
kindergarten
Gradinita Nr. 19
Gradinițe aprox. 1066 m
Recreere
bar
Bar Marian
Bar aprox. 33 m
park
Parcul Petofi Sandor
Parcuri aprox. 100 m
sports-ground
Teren sportiv
Terenuri sport aprox. 242 m
supermarket
Penny Market
Supermarket aprox. 528 m

Proprietăți recomandate

Detalii de contact

Agenția Imobiliară ISA

Larisa Tanasescu Administrator

Agenția Imobiliară ISA
PRO

Abonează-te la newsletter să fii primul care primește cele mai noi recomandări de proprietăți și sfaturi de la experți.

CONTACT

Creează alertă

Salvează căutarea ca să primești pe email ultimele anunțuri publicate

Spații comerciale de vânzare în zona Central, Sibiu