3 camere PREMIUM| 99.7 MP + 9.35 MP terasa

520.000 € + TVA

Floreasca, București

Nr. cam.:
3
Sup. utilă:
99,7 mp
Etaj:
5 / 8
An constr.:
2021 (Finalizată)
  • • Locație exactă

Descriere apartament

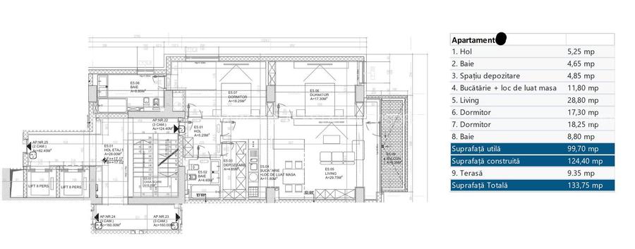
Impact Real Estate Advisors vă propune spre vânzare un apartament premium cu 3 camere, decomandat, 110 mp utili, într-un proiect rezidențial exclusivist din zona Floreasca – una dintre cele mai căutate și apreciate zone din București. ***La pretul afisat se adauga TVA. ***Locul de parcare poate fi achizionat separat la pretul de 28.000 +TVA, la subteran -1 sau in sitem Klaus, la -2, 30.000 +TVA -2locuri. Arhitectura modernă și designul elegant se îmbină perfect cu spațiile interioare ample și luminoase, datorită ferestrelor vitrate și finisajelor de cea mai bună calitate. Unul dintre punctele forte ale proprietății îl reprezintă vederea panoramică spectaculoasă către Parcul Verdi, ce oferă liniște și o oază de verdeață chiar în mijlocul orașului. Compartimentare: - Zona de intrare: hol generos cu spațiu de depozitare, zonă de spălătorie și grup sanitar. - Zona de zi: living luminos cu loc de luat masa și bucătărie open-space. - Zona de noapte: dormitor matrimonial cu baie proprie (cada) și dressing, dormitor secundar și baie cu cada si dressing - terasa cu acces din living Dotări și finisaje premium - Încălzire prin pardoseală – centrală proprie de bloc - Sistem de climatizare LG VR-F - Plăci ceramice Marazzi (dimensiuni floor-to-ceiling 320x160 mm) - Parchet triplu stratificat Bauwerk (Elveția) - Obiecte sanitare Villeroy & Boch - Uși de interior și acces Dierre - Tâmplărie aluminiu Alumil Imobilul dispune de paza pe timp de zi si supraveghere video 24/7. Vecinătăți: Apartamentul este situat într-o zonă premium, cu acces rapid către: - Parcul Verdi – la câțiva pași - Mall Promenada – 2 minute - Școli și grădinițe de prestigiu: Școala „Herăstrău”, Liceul „Jean Monnet”, Grădinița Bambi Step by Step, British School - Centre medicale și clinici private - Restaurante, cafenele și zone de lifestyle din Floreasca și Dorobanți - Acces facil către mijloace de transport și principalele artere din nordul Capitalei Certificatul energetic va fi disponibil la momentul vânzării. Agentia noastra va poate oferi consultanta bancara gratuita pentru obtinerea unui credit ipotecar/noua casa sau pentru alte informații bancare . Totodata, va oferim un discount de 30% pentru design interior si mobila pe comanda. Pentru mai multe detalii sau pentru a programa o vizionare, vă invităm să ne contactați.
Citește mai mult Citește mai puțin
Confort lux Semidecomandat Nemobilat Curte comună Aer condiționat

Detalii apartament

ID anunț: XC7L101QI Copiat! 274192847 Copiat!
Actualizat în: 17 Aprilie 2026
Suprafață construită: 124.7 mp
Nr. bucătării: 1
Nr. băi: 3
Structură rezistență: Cărămidă
Tip imobil: Bloc de apartamente
Regim înălțime: P+8E
Nr. terase: 1

Utilități

Pereți
Vopsea lavabilă
Podele
Gresie Parchet
Ușă intrare
Metal
Izolații termice
Exterior
Ferestre cu geam termopan
Aluminiu
Contorizare
Apometre Contor căldură Contor gaz
Electrocasnice
TV
Diverse
Telecomandă poartă garaj
Alte spații utile
WC Serviciu Terasă
Facilități imobil
Acoperiș Interfon Lift Videointerfon
Utilități
Curent Apă Canalizare CATV Gaze Telefon
Internet
Cablu
Servicii imobil
Supraveghere video
Amenajare străzi
Iluminat stradal Mijloace de transport în comun Asfaltate
Comision
standard

Vecinătăți:

Calea Floreasca, Barbu Vacarescu, Mall Promenada, Aviatiei, Dorobanti, Parcul Herastrau

Disponibilitate proprietate:

Imediat

Puncte de interes

Mijloace transport
bus-station
Statia Ancuta Baneasa, linia 135, N119
Stații autobuz aprox. 131 m
tram-station
Giuseppe Verdi
Stații tramvai aprox. 407 m
bus-station
Statia Soseaua Fabrica de Glucoza, linia 135, N119
Stații autobuz aprox. 543 m
metro-station
Aurel Vlaicu (M2)
Stații metrou aprox. 1019 m
Școală
school
LICEUL TEORETIC "C.A. ROSETTI"
Școli aprox. 329 m
school
Liceul C.A. Rosetti
Școli aprox. 329 m
kindergarten
Gradinita SOS Satul Copiilor
Gradinițe aprox. 494 m
university
Universitatea Atenaeum
Universități aprox. 1020 m
Recreere
park
Parcul Verdi
Parcuri aprox. 210 m
sports-ground
Teren sportiv
Terenuri sport aprox. 438 m
supermarket
BILLA - B. Vacarescu
Supermarket aprox. 796 m
public-square
Piața Aviatorilor
Piețe publice aprox. 1920 m

Detalii despre preț și costuri

Prețul pe piață

Preț cerut: 520.000 €

Preț min. zonă
Preț max. zonă

99% dintre proprietățile similare ca zonă și nr. camere au prețul cerut mai mic. mai multe...

Bine de știut: prețul unei proprietăți este influențat și de alte caracteristici, cum ar fi: vechime, localizare, vecinătăți, suprafață, compartimentare, amenajări, dotări, etc. mai puțin...

Insight premium disponibil după login

Costuri cu achiziția

Fără credit
Credit ipotecar
Noua casă

i

Costuri adiționale mai puțin știute la achiziție: taxe notariale, comisioane etc.

Insight premium disponibil după login

Proprietăți recomandate

Detalii de contact

Abonează-te la newsletter să fii primul care primește cele mai noi recomandări de proprietăți și sfaturi de la experți.

CONTACT

Creează alertă

Salvează căutarea ca să primești pe email ultimele anunțuri publicate

Apartamente noi cu 3 camere de vânzare în zona Floreasca, Sector 1