3 CAMERE || VEDERE LIBERA || 2 LOCURI PARCARE || BOXA || FLOREASCA

750.000 €

Floreasca, București

Nr. cam.:
3
Sup. utilă:
134,2 mp
Etaj:
4 / 7
An constr.:
2021 (Finalizată)
  • • Locație aproximativă

Descriere apartament

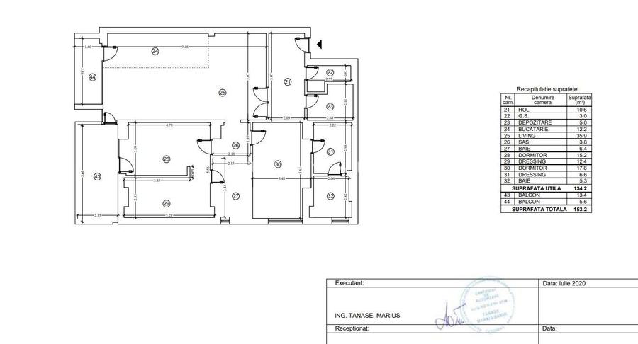
Daca sunteti in cautarea unui apartament cu 3 camere spatios (134.2 mp utili), insotit de doua terase generoase ca spatiu (19 MP), amplasat in cartierul Floreasca, chiar langa parcul Verdi, cred ca nu mai este nevoie sa continuati cautarile! Proprietatea despre care vrem sa va povestim se afla la etajul 4 al unui proiect boutique cu 8 niveluri , compus din 3-4 apartamente pe nivel si finalizat in anul 2021 Imobilul beneficiaza de locuri de parcare in subteran, supraveghere video, paza, 2 lifturi si centrala termica proprie (de imobil). Proprietatea dispune de o compartimentare functionala, desfasurata in felul urmator: - hol intrare cu spatiu de dressing si camera pentru spalatorie/uscatorie/debara si grup sanitar de serviciu - living cu bucatarie open space, cu suprafata totala de 48.1 mp - terasa cu acces din living de 5.6 mp - hol de distributie catre zona de noapte - dormitor matrimonial de 15.2 mp + dressing walk in de 12.4 mp si baie proprie de 6.4 mp - terasa de 13.4 mp cu acces din dormitorul matrimonial - dormitor secundar de 17.8 mp + dressing de 6.6 mp si baie proprie de 5.3 mp cu aerisire naturala APARTAMENTUL ESTE EXTREM DE SPATIOS PENTRU UN SPATIU DE 3 CAMERE, BENEFICIIND DE 134.2 MP UTILI, LA CARE SE ADAUGA 2 TERASE CU SUPRAFETE CUMULATE DE 19 MP. Finisajele de care dispune acest proiect sunt de calitate inalta: - Tamplarie Aluminiu - Brand Alumil - Fatada - Ventilata Equitone - Ceramica - Marazzi - Parchet - Bauwerk - Grupuri sanitare - Villeroy & Boch, Grohe - Centrala termica & incalzire pardoseala - Vaillant, TECE - Aer Conditionat - LG VR-F - Usi interior - Dierre filopanelo -Certificat Energetic - Clasa A In momentul de fata apartamentul este inchiriat si se poate prelua contractul de inchiriere. Din punctul nostru de vedere, acest apartament reprezinta o alegere inspirata pentru: - persoanele single, cuplurile sau familiile ce doresc sa locuiasca in zona de nord, la efectiv "2 pasi" de toate atractiile oferite de Calea Floreasca si zonele adiacente - persoanele ce isi doresc un spatiu exterior precum o terasa, suficient de spatios, dar si de intim, astfel incat chiar sa-si petreaca cat mai mult timp liber, savurand o cafea sau un pahar de vin, alaturi de persoanele dragi - pasionatii de investitii sigure, cu un randament bunicel, ce asigura totusi si o pastrare a valorii banilor investiti Tinand cont de toate cele spuse mai sus, va invitam cu mare drag sa vizitam aceasta proprietate, pentru a va convinge de valoarea ei!
Citește mai mult Citește mai puțin
Confort lux Semidecomandat Mobilat Aer condiționat Centrală imobil Încălzire prin pardoseală 2 Parcări 2 Garaje

Detalii apartament

ID anunț: X4JJ108DN Copiat! 275272260 Copiat!
Actualizat în: 13 Martie 2026
Suprafață construită: 153.2 mp
Nr. bucătării: 1
Nr. băi: 3
Structură rezistență: Beton
Tip imobil: Bloc de apartamente
Tip tranzacție: De vânzare prin agent
Regim înălțime: S+P+7E
Nr. terase: 2
Modalitate de plată: Cash sau Credit

Utilități

Destinație
Birouri Rezidențial
Pereți
Faianță Vopsea lavabilă
Podele
Gresie Parchet
Ușă intrare
Metal
Uși interior
Lemn
Izolații termice
Exterior Interior
Ferestre cu geam termopan
Aluminiu
Contorizare
Apometre Contor gaz
Bucătărie
Mobilată Utilată
Diverse
Senzor de fum Telecomandă poartă acces auto
Alte spații utile
Debara WC Serviciu Terasă
Facilități imobil
Lift Videointerfon
Utilități
Curent Apă Canalizare CATV Gaze Telefon
Internet
Cablu Wireless
Servicii imobil
Pază Supraveghere video
Amenajare străzi
Iluminat stradal Mijloace de transport în comun Asfaltate
Comision
standard

Vecinătăți:

Floreasca
Dorobanti
Barbu Vacarescu
Dinamo
Primaverii

Disponibilitate proprietate:

Imediat

Puncte de interes

Mijloace transport
bus-station
Statia Calea Floreasca / Ceaikovski / Mircea Eliade, linia 135, 182, 282, N119, N123
Stații autobuz aprox. 209 m
tram-station
Ceaikovski
Stații tramvai aprox. 330 m
bus-station
Statia Ancuta Baneasa, linia 135, N119
Stații autobuz aprox. 380 m
metro-station
Piata Aviatorilor (M2)
Stații metrou aprox. 1428 m
Școală
school
LICEUL TEORETIC "C.A. ROSETTI"
Școli aprox. 193 m
school
Liceul C.A. Rosetti
Școli aprox. 193 m
kindergarten
Gradinita nr. 12 Albinuta
Gradinițe aprox. 257 m
university
Universitatea Atenaeum
Universități aprox. 547 m
Recreere
park
Parcul Floreasca(1963)
Parcuri aprox. 437 m
supermarket
BILLA - B. Vacarescu
Supermarket aprox. 489 m
sports-ground
ICSIM
Terenuri sport aprox. 503 m
mall
"METROPLIS CENTER"
Mall aprox. 1653 m

Detalii despre preț și costuri

Prețul pe piață

Preț cerut: 750.000 €

Preț min. zonă
Preț max. zonă

i

Proprietate cu prețul cerut în afara intervalului mai multe...

Posibile explicații pentru faptul că prețul proprietății este peste cel maxim: imobil nou cu suprafață mare, are dotări și finisaje de lux.
Bine de știut: prețul unei proprietăți este influențat și de alte caracteristici, cum ar fi: vechime, localizare, vecinătăți, suprafață, compartimentare, amenajări, dotări, etc.
Acces la informații premium după autentificare
Login Gratuit

Costuri cu achiziția

Fără credit
Credit ipotecar
Noua casă

i

Costuri adiționale mai puțin știute la achiziție: taxe notariale, comisioane etc.

Acces la informații premium după autentificare
Login Gratuit

Proprietăți similare

Apartament cu 3 camere semidecomandat în Floreasca
750.200 €
București, Floreasca
3 camere
87,5 mp
Etaj 1 / 4
Apartament cu 3 camere semidecomandat în Floreasca
785.290 €
București, Floreasca
3 camere
84,3 mp
Etaj 2 / 4
Apartament cu 3 camere decomandat în Floreasca
726.000 €
București, Floreasca
3 camere
135 mp
Etaj 2 / 7

Detalii de contact

GREEN ALLEY REAL ESTATE

Cristian Verdeata SALES&NEW HOMES MANAGER

5.00(3 review-uri)

GREEN ALLEY REAL ESTATE
PRO

Abonează-te la newsletter să fii primul care primește cele mai noi recomandări de proprietăți și sfaturi de la experți.

CONTACT

Creează alertă

Salvează căutarea ca să primești pe email ultimele anunțuri publicate

Apartamente noi cu 3 camere de vânzare în zona Floreasca, Sector 1