Capitoliu Imobiliare va ofera spre inchiriere o casa individuala in zona semicentrala Piata Cipariu.
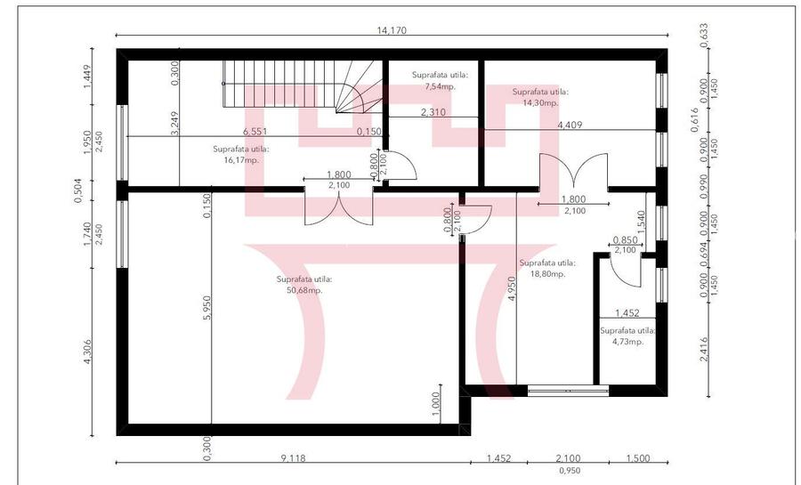
Dispusa D + P + E + M casa are o suprafata utila de 340mp si este compusa in mare parte precum se poate observa in schitele atasate, compartimentarile realizate ulterior de actualul chirias nu se regasesc pe schite. Aceste compartimentari se pot pastra sau nu, spatiul se poate recompartimenta dupa nevoile viitorului chirias.
In momentul de fata casa este inchiriata cu destinatie de birouri, dar proprietarul este dispus sa accepte o schimbare de destinatie, in cazul in care chiriasul solicita acest aspect si sa puna la dispozitie toate actele necesare.
Spatiul se preda zugravit si igienizat si este disponibil din 01.01.2026
Pozele sunt aranjate P + E + M + D
Sediul central - Timișoara
Bulevardul Victor Babeș nr. 2, 300230, Timișoara, România
Tel: +40.374.40.44.98 / Fax: +40.256.401.179
Email: suport@imobiliare.ro
Luni - Vineri 08:00 - 20:00
Punct de lucru - București: Iride Business Park, Bld. Dimitrie
Pompeiu 9-9A, Clădirea B2B,
020335, Sector 2, București, România
CONTACT
Sediul central - Timișoara
Bulevardul Victor Babeș nr. 2, 300230, Timișoara, România
Tel: +40.374.40.44.98 / Fax: +40.256.401.179
Email: suport@imobiliare.ro
Luni - Vineri 08:00 - 20:00
Punct de lucru - București: Iride Business Park, Bld. Dimitrie
Pompeiu 9-9A, Clădirea B2B,
020335, Sector 2, București, România
Liceul de Coregrafie si Arta Dramatica Octavian Stroia
aprox.
154 m
Colegiul National George Cosbuc
aprox.
205 m
Centrul Școlar pentru Educație Incluzivă ( fosta Școala Specială nr. 1)
aprox.
223 m
Liceul Teoretic Gheorghe Sincai
aprox.
244 m
Liceul Teologic Reformat
aprox.
273 m
Liceul Teoretic "Gheorghe Sincai"
aprox.
278 m
Liceul Teoretic Apaczai Csere Janos
aprox.
284 m
Kolozsvari Reformatus Gimnazium (hu)
aprox.
349 m
Colegiul național "Emil Racoviță"
aprox.
384 m
Colegiul National Emil Racovita
aprox.
385 m
Liceul Teoretic Apaczai Csere Janos
aprox.
439 m
Arhiepiscopia Ortodoxa, Facultatea de Teologie Ortodoxa, Seminarul Teologic Ortodox
aprox.
461 m
Colegiul Național George Coșbuc
aprox.
505 m
Academia de Muzica Gheorghe Dima
aprox.
510 m
European College Foundation (en)
aprox.
592 m
Sapientia
aprox.
162 m
Sapientia Erdelyi Magyar Tudomanyegyetem
aprox.
199 m
Centrul de Cooperare Internationala
aprox.
270 m
Academia de Muzică "Gheorghe Dima"
aprox.
504 m
Academia de Muzica Gheorghe Dima
aprox.
519 m
Facultatea de Studii Europene
aprox.
544 m
Faculty of European Studies, Babes-Bolyai University (en)
aprox.
544 m
Institutul Culturii Clujene in Europa
aprox.
548 m
UBB Teatru si Televiziune
aprox.
563 m
Faculty of Theatre & Television, Babes-Bolyai University (en)
aprox.
570 m
facultatea de matematica si informatica si facultatea de fizica
aprox.
590 m
Universitatea Spiru Haret
aprox.
592 m
Institutul Teologic Protestant
aprox.
602 m
Universitatea Babes-Bolyai
aprox.
621 m
Apafi Mihaly Reformatus Egyetemi Kollagium (en)
aprox.
628 m
Grăd.Albă ca Zăpada str.1 corp C
aprox.
234 m
Gradinita Tanadarica
aprox.
431 m
Grăd.Universității Babeș< Bolyai corp B
aprox.
492 m
Grăd. Poenița
aprox.
493 m
Grăd.Universității Babeș Bolyai
aprox.
570 m
Grăd.Mămăruța str. 1
aprox.
606 m
Gradinita UBB
aprox.
670 m
Gradinita Unitariana
aprox.
677 m
Grăd.Universității Babeș< Bolyai
aprox.
687 m
Alba ca zapada
aprox.
748 m
Grăd.Albă ca Zăpada str. 1 corp A+B
aprox.
751 m
Grăd.Dumbrăvioara, corp B, Locația Năsăud
aprox.
759 m
Grăd Lumea copiilor corp A+B
aprox.
790 m
Kinderland
aprox.
796 m
Grăd.Mămăruța
aprox.
808 m
Carrefour Express
aprox.
264 m
Minimarket
aprox.
620 m
Profi
aprox.
712 m
Sora Shopping Center
aprox.
763 m
Carrefour Market
aprox.
776 m
Magazin Mixt
aprox.
864 m
Billa
aprox.
914 m
Central
aprox.
920 m
Magazin Alimentar
aprox.
1033 m
Unicarm
aprox.
1057 m
Koncert
aprox.
1081 m
Lidl
aprox.
1234 m
Complex Comercial Hermes
aprox.
1252 m
Profi
aprox.
1268 m
Carrefour
aprox.
1270 m
Parcare
aprox.
73 m
Parcare
aprox.
117 m
Parcare
aprox.
123 m
Parcare
aprox.
309 m
Parcare
aprox.
361 m
Parcare
aprox.
442 m
Parcare
aprox.
582 m
Parcare privata
aprox.
630 m
Parcare privata
aprox.
631 m
Parcare
aprox.
650 m
Parcare cu plata
aprox.
670 m
Parcare
aprox.
701 m
Parcare
aprox.
724 m
Parcare cu plata
aprox.
805 m
Parcare pentru clienti cu plata
aprox.
808 m
Parc
aprox.
102 m
Piata Stefan cel Mare
aprox.
181 m
Parc
aprox.
188 m
Parc
aprox.
195 m
Parc
aprox.
274 m
Parc
aprox.
285 m
Parc
aprox.
316 m
Piata "Avram Iancu"
aprox.
458 m
Parc
aprox.
728 m
Parc
aprox.
730 m
Parc
aprox.
730 m
Iorga colt cu amos f. (en)
aprox.
827 m
Parcul Iorga
aprox.
861 m
Parcul Iorga
aprox.
861 m
Parc
aprox.
871 m
Teren sportiv
aprox.
256 m
Teren sportiv
aprox.
276 m
Teren sportiv
aprox.
295 m
Teren sportiv
aprox.
305 m
Teren sportiv
aprox.
613 m
Teren sportiv
aprox.
625 m
Teren sportiv
aprox.
775 m
Palatul Copiilor - Tennis court
aprox.
892 m
Teren sportiv
aprox.
1019 m
Teren sportiv
aprox.
1160 m
Teren sportiv
aprox.
1272 m
Teren sportiv
aprox.
1474 m
Teren sportiv
aprox.
1500 m
Teren sportiv
aprox.
1502 m
Teren sportiv
aprox.
1517 m
Piata Mihai Viteazul
aprox.
1017 m
Piața "Lucian Blaga" (fosta Păcii)
aprox.
1021 m
Piata 1848
aprox.
1802 m
Dona
aprox.
44 m
Eco Farmacia
aprox.
118 m
Farmacia Richter
aprox.
336 m
Farmacia
aprox.
372 m
Farmacia Remedium
aprox.
455 m
Farmacia Remedium
aprox.
494 m
Infofarm
aprox.
591 m
Sensi blu Pharmacy
aprox.
672 m
Farmadex
aprox.
694 m
Aqua Farm
aprox.
730 m
Terrafarm
aprox.
760 m
Coral
aprox.
787 m
Farmacia Dona
aprox.
801 m
Farmacia Richter
aprox.
812 m
Nutricare
aprox.
847 m
STOMA HD - Cabinet Stomatologic - Dr. Doru Hadarean (en)
aprox.
236 m
Policlinica pentru Sportivi
aprox.
253 m
Centrul medical gastroenterologie si hepatologie
aprox.
431 m
Centrul Medical de Gastroenterologie, Hepatologie și Endoscopie Digestivă (en)
aprox.
450 m
Spitalul Clinic de Ortopedie
aprox.
545 m
Spitalul de Ortopedie
aprox.
546 m
Policlinica de Ginecologie Gynia
aprox.
608 m
Spitalul Ginecologic Stanca
aprox.
712 m
Institutul Regional de gastroenterologie si hepatologie
aprox.
738 m
Radusan
aprox.
825 m
Institutul de Hematologie
aprox.
856 m
Centrul medical CosMedica
aprox.
859 m
Spitalul de Hematologie
aprox.
907 m
MS Care Dr. Sbirciu
aprox.
907 m
Regina Maria (Policlinica Muzeului)
aprox.
919 m
Bistro Ancuța
aprox.
46 m
El Toro Steakhouse
aprox.
54 m
Adi's Steakhouse
aprox.
174 m
Sandany
aprox.
181 m
Bolero
aprox.
217 m
Bolero
aprox.
232 m
Gente
aprox.
240 m
Polo
aprox.
240 m
Trattoria Pineta
aprox.
265 m
Opera
aprox.
313 m
Nomad Gastro Pub
aprox.
326 m
Fast Food
aprox.
330 m
Marty Caffe
aprox.
355 m
Bistro No 28
aprox.
355 m
Avocado
aprox.
372 m
Ancuta Comimpex
aprox.
55 m
Milenium Bar
aprox.
412 m
Joben Bistro
aprox.
440 m
La Movida
aprox.
587 m
Club Litoral
aprox.
681 m
Junkyard
aprox.
838 m
Moonshine
aprox.
866 m
Bulgakov Cathouse
aprox.
870 m
Toni's Pub
aprox.
881 m
Ema
aprox.
899 m
Seasons City Cafe
aprox.
906 m
Hemingway
aprox.
910 m
Tangaj
aprox.
934 m
Revolution
aprox.
939 m
SHTO College Bar
aprox.
939 m
Bistro
aprox.
56 m
Crama Borissza
aprox.
480 m
O'Beer Irish Pub
aprox.
490 m
Submarine
aprox.
649 m
Che Guevara
aprox.
770 m
Spatiu
aprox.
811 m
The Jack
aprox.
831 m
La Tevi
aprox.
846 m
Old Schepherd
aprox.
886 m
Bermuda's Pub
aprox.
915 m
Makeba
aprox.
916 m
Buricu' Targului
aprox.
969 m
Old School
aprox.
977 m
Social Club P. Howard
aprox.
980 m
Klausen
aprox.
994 m
Chelsea Cigar Lounge
aprox.
143 m
La Perne
aprox.
232 m
Crazy Cafe
aprox.
237 m
Sanko Cafe
aprox.
273 m
Il caffe
aprox.
274 m
Opera Food & Cafe
aprox.
313 m
Lady Cat
aprox.
343 m
Snack & Coffe
aprox.
378 m
Narcoffee
aprox.
403 m
Phil's
aprox.
445 m
CHOCODOR
aprox.
519 m
Tucano Coffee
aprox.
534 m
Enigma Cafe
aprox.
576 m
Olivo Caffe & Bistro
aprox.
594 m
Grotta
aprox.
599 m
OTP Bank
aprox.
37 m
Piraeus Bank
aprox.
46 m
Intesa Sanpaolo Bank
aprox.
54 m
BRD
aprox.
73 m
Banca Transilvania
aprox.
96 m
Banca Comerciala Carpatica
aprox.
102 m
ING
aprox.
121 m
Procredit Bank
aprox.
146 m
UniCredit
aprox.
243 m
ProCredit Bank
aprox.
248 m
BCR
aprox.
271 m
Raiffeisen Bank
aprox.
295 m
BRD
aprox.
335 m
Banca Transilvania
aprox.
369 m
Banca Transilvania
aprox.
398 m
În mod firesc, datorită localizării și importanței sale, Centrul Clujului este una dintre zonele cel mai bine deservite la capitolul mijloace de transport în comun, acestea având menirea de a ușura accesul către celelalte cartiere ale orașului (nu doar cele învecinate). În plus, aici a fost inaugurată, în ultimii ani, o bandă specială pentru transportul în comun: aceasta începe pe Strada Memorandumului, în apropiere de sediul central al Primăriei Cluj-Napoca, și se continuă pe Bulevardul 21 Decembrie 1918, legând astfel zona Centru de cartierul Mărăști. Și pasionații de bicicletă au de câștigat de pe urma acestui proiect, noua bandă putând fi folosită și pentru acest mijloc de locomoție.
Dacă vei decide să te muți în Centru, unul dintre beneficiile importante de care vei avea parte va fi reprezentat tocmai de multiplele opțiuni de educație pentru copiii tăi "“ atât în ceea ce privește ciclul preșcolar, cât și cel gimnazial și liceal. Printre instituțiile de prestigiu din acest cartier se numără, spre exemplu, Școala Gimnazială "Ioan Bob", cea mai veche școală românească din Cluj-Napoca. La capitolul învățământ superior, această zonă oferă, de departe, cele mai numeroase oportunități dintre toate cartierele orașului de pe Someș. Astfel, aici se găsesc sediul central al Universității "Babeș-Bolyai", Facultatea de Geografie, Facultatea de Chimie și Inginerie Chimică, Facultatea de Automatică și Calculatoare, Facultatea de Matematică și Informatică (din cadrul Universității "Babeș-Bolyai"), Facultatea de Studii Europene, precum și Institutul Teologic Protestant.
Multiple opțiuni există și pentru pasionații centrelor comerciale moderne, Central Shopping Center fiind un punct de referință pentru mulți clujeni. În apropiere se află și Sora Shopping Center, precum și Ferdinand Galeria. Pentru cumpărăturile de alimente și alte produse de bază, clujenii care locuiesc în Centru nu au la dispoziție un hipermarket "“ deși pot ajunge, în caz de nevoie, la Kauflandul din Mărăști sau la cel din Mănăștur. Nevoile zilnice pot fi satisfăcute, însă, fără prea mari probleme, de magazinele de mai mici dimensiuni existente în cartier.
Pentru cei care au mașină proprie, găsirea unui loc de parcare permanent poate reprezenta, cel puțin în anumite situații, o problemă. Pentru a evita orice probleme în această privință, șoferii se pot interesa cu privire la procedura de închiriere a unui loc de parcare la sediul central al Primăriei Clujului, de pe Strada Moților, nr. 3.
Astfel, pe lângă spațiile verzi și locurile de joacă amenajate pe alocuri, aceștia pot alege, pentru relaxare, între mai multe parcuri, cum ar fi Parcul Central "Simion Bărnuțiu" (amplasat aproape de granița cu Plopilor), Grădina Miko (aproape de Zorilor) sau Parcul Operei. De menționat este, desigur, și Grădina Botanică "Alexandru Borza", situată în sudul cartierului, care reprezintă o destinație perfectă pentru relaxare pe timp de weekend (dar nu numai). Față de alte zone ale orașului de pe Someș, Centrul se distinge și printr-o multitudine de obiective de interes turistic și cultural.
Dintre toate cartierele Clujului, Centrul este cel mai bine reprezentat și la capitolul servicii medicale de stat, aici găsindu-se cele mai multe spitale și clinici de acest tip. În cartier se găsesc, bineînțeles, și o serie de cabinete și clinici medicale particulare, dintre care de menționat ar fi centrele medicale Synevo, Affidea, Cardiomed, dar și clinica de oftalmologie Optinis.
Comparativ cu alte cartiere ale orașului de pe Someș, zona Centrală este, în mod firesc, mult mai ofertantă la capitolul oportunități gastronomice. Astfel, printre opțiunile demne de luat în seamă de aici se numără restaurantele "Casa Boema" (de pe Strada Iuliu Maniu, nr. 34), "Semplice Gourmet" (de pe Strada Calea Dorobanților, nr. 18-20), "Da Pino" (de pe Strada Universității, nr. 8), "Insomnia" (de pe Strada Universității, nr. 2), dar și altele. Dacă ești interesat de o ieșire în oraș cu prietenii, în zona Centrală ai la dispoziție, desigur, și o serie de cafenele, precum "Doamna T", "Papillon Cafe" sau "Meron Opera".
Dacă ai nevoie să efectuezi o operațiune bancară, te vei bucura să afli că zona Centru este foarte bine deservită la acest capitol. Spre exemplu, aici pot fi găsite, într-un areal destul de restrâns, două sedii Banca Transilvania (unul pe Bulevardul Eroilor, nr. 36, iar celălalt, pe Calea Dorobanților, nr. 3), o sucursală ING Bank (pe Bulevardul Eroilor, nr. 9), dar și una CEC Bank (pe Bulevardul 21 Decembrie 1989). De asemenea, la granița dintre Gruia și zona Centrală (reprezentată de Strada Horea), se găsesc alte trei sucursale bancare: una din rețeaua BCR, o Banca Transilvania, alături de un sediu Raiffeisen Bank. Consultă harta și află unde sunt localizate și alte bănci sau ATM-uri în zona Centru:
Înainte să pleci...
Ești sigur că ai văzut și aceste proprietăți?
4.400 € / lună
Cluj-Napoca, Andrei Mureșanu
10 camere
390 mp
1.600 mp teren
3.700 € / lună
Cluj-Napoca, Gheorgheni
12 camere
310 mp
400 mp teren
2.500 € / lună
Cluj-Napoca, Semicentral
12 camere
311 mp
153 mp teren
10.000 € + TVA / lună
Cluj-Napoca, Zorilor
7 camere
600 mp
1.500 mp teren
1.900 € / lună
Cluj-Napoca, Zorilor
9 camere
300 mp
620 mp teren
5.400 € / lună
Cluj-Napoca, Zorilor
16 camere
675 mp
500 mp teren
Creează alertă
Salvează căutarea ca să primești pe email ultimele anunțuri publicate
Case individuale cu 4+ camere de închiriat în zona Central, Cluj-Napoca
Cere detalii prin email
*
*
*
*
Detaliile tale de contact vor fi partajate cu Capitoliu Imobiliare