21

Vila La Primavera | Luxury Homes | Vila exclusivista | Vedere la Lacul Floreasca

4.600.000 €

Floreasca, București

Nr. cam.:
6
Sup. utilă:
470 mp
Sup. teren:
475 mp
Tip prop.:
Individuală
  • • Locație aproximativă

Descriere casă

Pentru o viata linistita, armonia este un factor cheie in orice familie. De aceea, atunci cand cauta locuinta perfecta pentru toti ai casei, clientii nostri pun mare accent de la inceput pe localizarea acesteia. Intr-o zona exclusivista a Capitalei, cu o superba vedere la lac, Vila La Primavera pare sa fie locul ideal de numit "acasa" pentru o familie cu 1 sau 2 copii in cautarea acelei locuinte care sa le ofere siguranta, confort, spatiu suficient si toate conditiile de trai pentru a crea noi si pretioase amintiri impreuna. Drept vorbind, o asemenea priveliste deschisa si pozitionare, vedere direct spre lac si liniste serena in mijlocul Capitalei sunt foarte rare! Proprietatea este imprejmuita cu piatra pe gardul de la exterior,pavaj nou si stalpuleti in jurul casei,2 porti electrice cu comanda inteligenta de pe telefon,sistem de supreveghere si alarma de ultima generație. Sistemul de jaluzele electrice protejeaza de zgomot si mentine temperarura interna , casa fiind complet izolata termic pentru o maxima eficientizare a consumului si - evident - certificat energetic clasa A. Inclusiv piscina dispune de dotari de ultima generatie: incalzire si copertina electrica. Alte dotari demne de mentionat sunt statia electrica de maxima putere unde masina se incarca in max 7 ore, usa la intrare cu amprenta digitala, sistemul de iluminat led la exterior gradina si pe casa. La interior, de asemenea, nu s-a facut rabat de la calitate: - bucatarie de la Aster Italia cu toate accesoriile, - frigider de vinuri de la Libherr, - centrala separata pentru casa si centrala pentru piscina, - mobilier pe comanda din Italia( un real starter de conversatie va fi confortul oferit de canapeaua Minotti din living ) - sala de sport, - lift Schindler cu toate accesoriile digitale si led, - dormitoare complet mobilate - fiecare cu dressingul lor; la dormitorul matrimonial ambele dressinguri sunt de la POLIFORM Italia cu sistem led digital + terasa de la etaj 4 care va fi amenajata si echipata cu insula de bucatarie exterior si toate accesoriile necesare. Configuratia arhitecturala este gandita sa eficientizeze maxim raportul spatiu construit - spatiu util, oferindu-va astfel 8 camere spatioase, cu ferestre inalte, proportii echilibrate, un flow natural al zonelor de socializare spre intimitatea celor 4 dormitoare, nu mai putin de 6 terase cu vedere superba direct spre Lacul Floreasca, bucatarie ultra-moderna si totul amenajat cu atat de mult bun gust incat va fi usor sa ii spuneti Vilei Bellara "acasa" in cel mai scurt timp. Poate chiar de la prima vizionare!
Citește mai mult Citește mai puțin
Mobilat Lux Piscină Curte Aer condiționat Centrală proprie Încălzire prin pardoseală 2 Parcări

Detalii casă

ID anunț: X2F7111SC Copiat! 273802656 Copiat!
Actualizat în: 29 Ianuarie 2026
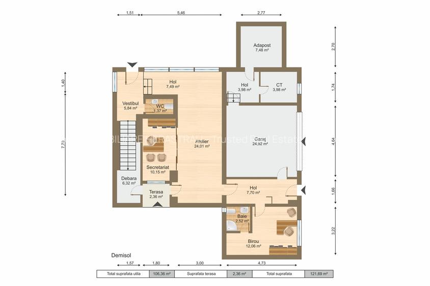
Suprafață construită: 155 mp
Suprafață desfășurată: 750 mp
Nr. bucătării: 1
Nr. băi: 5
Nr. terase: 6
Suprafață terase: 160 mp
Front stradal: 15.0 m
An construcție: 2022 (Finalizată)
Structură rezistență: Beton
Regim înălțime: D+P+2E

Utilități

Pereți
Faianță Vopsea lavabilă
Podele
Parchet
Rulouri/Obloane
Aluminiu
Ușă intrare
Metal
Izolații termice
Exterior Interior
Ferestre cu geam termopan
Aluminiu
Contorizare
Apometre Contor gaz
Bucătărie
Mobilată Utilată
Electrocasnice
Aragaz Frigider Hotă Mașină de spălat rufe Mașină de spălat vase
Diverse
Scară interioară Șemineu Sistem de alarmă Telecomandă poartă acces auto Telecomandă poartă garaj
Alte spații utile
Dressing WC Serviciu
Dotări imobil
Acoperiș Lift Spații agrement Videointerfon
Utilități
Curent Apă Canalizare CATV Gaze Telefon
Acces internet
Cablu Wireless
Servicii imobil
Supraveghere video
Amenajare străzi
Iluminat stradal Mijloace de transport în comun Asfaltate

Disponibilitate proprietate:

Imediat

Puncte de interes

Mijloace transport
bus-station
Statia Ancuta Baneasa, linia 135, N119
Stații autobuz aprox. 143 m
tram-station
Giuseppe Verdi
Stații tramvai aprox. 457 m
bus-station
Statia Soseaua Fabrica de Glucoza, linia 135, N119
Stații autobuz aprox. 502 m
metro-station
Aurel Vlaicu (M2)
Stații metrou aprox. 971 m
Școală
school
LICEUL TEORETIC "C.A. ROSETTI"
Școli aprox. 375 m
school
Liceul C.A. Rosetti
Școli aprox. 375 m
kindergarten
Gradinita SOS Satul Copiilor
Gradinițe aprox. 448 m
university
Universitatea Atenaeum
Universități aprox. 1057 m
Recreere
park
Parcul Verdi
Parcuri aprox. 256 m
sports-ground
Teren sportiv
Terenuri sport aprox. 461 m
supermarket
Promenada
Supermarket aprox. 816 m
public-square
Piața Aviatorilor
Piețe publice aprox. 1914 m

Proprietăți recomandate

Detalii de contact

IMOBILIARE HERASTRAU - Trusted Real Estate Advisor

Lucian Dan Realtor | Broker Owner

4.67(4 review-uri)

IMOBILIARE HERASTRAU - Trusted Real Estate Advisor
PRO

Abonează-te la newsletter să fii primul care primește cele mai noi recomandări de proprietăți și sfaturi de la experți.

CONTACT

Creează alertă

Salvează căutarea ca să primești pe email ultimele anunțuri publicate

Case individuale cu 4+ camere de vânzare în zona Floreasca, Sector 1