31

REV2004758 Vila de epoca cu proiect de extindere I Zona Unirii

425.000 €

Unirii, București

Nr. cam.:
7
Sup. utilă:
262 mp
Sup. teren:
273 mp
Tip prop.:
Individuală
  • • Locație aproximativă
  • • Vizionare prin apel video

Descriere casă

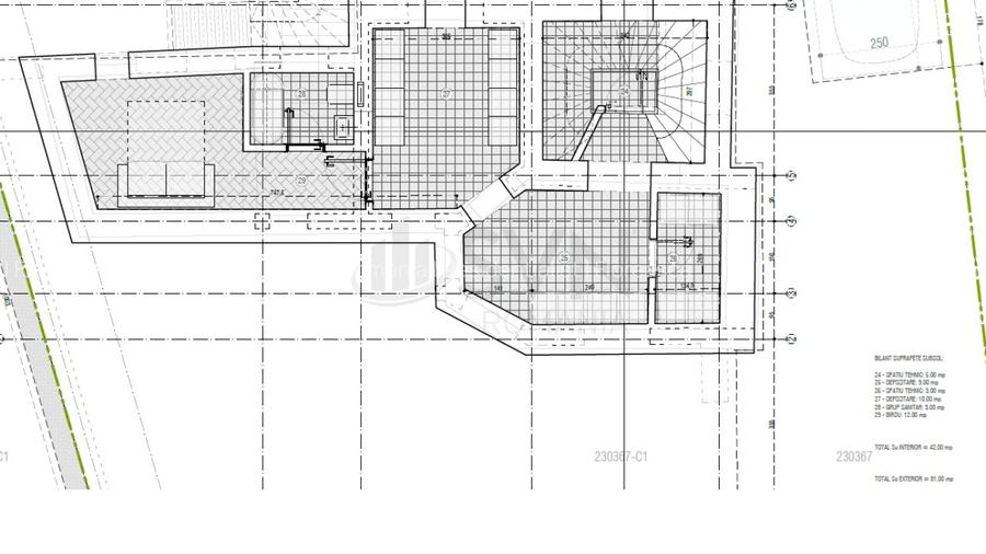
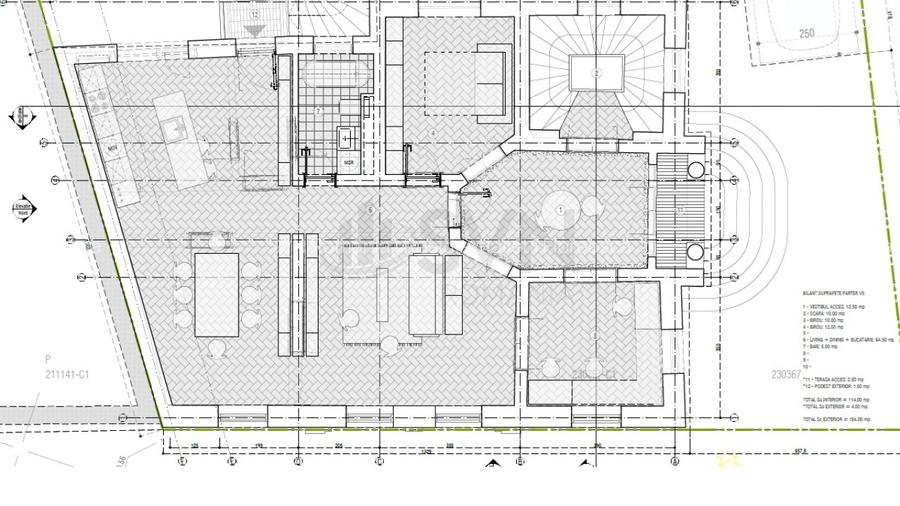
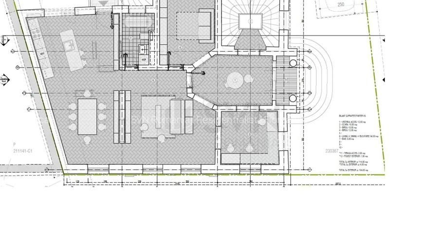
SVN Residentialist va propune spre vanzare o proprietate cu identitate si potential, situata in inima Bucurestiului – zona Unirii – 11 Iunie, un cartier istoric si ultracentral, recunoscut pentru farmecul arhitectural si accesibilitatea excelenta. Este vorba despre o casa individuala cu arhitectura de epoca, amplasata pe un teren de 273 mp si avand in prezent o suprafata construita de 234 mp, desfasurata pe demisol si parter. Proprietatea include 5 camere si dependinte, iar structura existenta permite interventii moderne, fara a compromite caracterul original al cladirii. Punctul central de atractie al ofertei il reprezinta proiectul de consolidare, recompartimentare si extindere, aflat in etapa avansata de autorizare. Acesta presupune transformarea cladirii intr-o constructie cu regim de inaltime S+P+1E, cu o suprafata desfasurata totala de 389 mp si 262 mp utili. Noua configuratie imbina armonios functionalitatea contemporana cu stilul unei locuinte cu caracter: Demisolul va include un spatiu versatil (birou sau dormitor), doua camere tehnice, doua depozite si un grup sanitar. Parterul se va distinge printr-un vestibul elegant, doua camere, grup sanitar si o zona de zi ampla, de tip open space (living, dining si bucatarie) ce se intinde pe 65 mp si poate fi adaptata dupa preferintele noului proprietar. Etajul va gazdui cinci camere, un dressing generos, doua bai si spatii de depozitare bine amplasate. Curtea permite acces auto, iar garajul individual (13 mp) completeaza utilitatea locuintei. Proprietatea beneficiaza deja de toate utilitatile: electricitate, gaz, apa, canalizare, CATV. Aceasta oferta se adreseaza atat clientilor in cautarea unei resedinte reprezentative intr-o zona istorica a orasului, cat si investitorilor care vizeaza o dezvoltare premium, cu valoare adaugata reala. Fie ca vorbim despre locuire, birou de reprezentare sau inchiriere de tip boutique, aceasta proprietate are toate premisele unei investitii inspirate pe termen lung. Pentru mai multe detalii sau pentru a programa o vizionare, va invitam sa ne contactati. Echipa SVN Residentialist este aici pentru a va oferi consultanta dedicata si profesionalism.
Citește mai mult Citește mai puțin
Acceptă animale de companie Grădină Calorifere Beci 2 Parcări 1 Garaj

Detalii casă

ID anunț: XENT110DO Copiat! 259830118 Copiat!
Actualizat în: 22 Februarie 2026
Suprafață construită: 389 mp
Suprafață desfășurată: 389 mp
Nr. bucătării: 1
Nr. băi: 4
Nr. terase: 1
An construcție: 1941 (Finalizată)
Structură rezistență: Cărămidă
Tip imobil: Casă/Vilă
Regim înălțime: S+P+1E

Utilități

Destinație
Rezidențial Birouri Birouri
Pereți
Faianță
Podele
Gresie
Alte spații utile
Spațiu depozitare
Facilități imobil
Acoperiș
Utilități
Gaze Apă Canalizare
Comision
Standard

Vicii:

Fără vicii.

Alte detalii:

Unirii, o zonă plină de facilități

Situată în centrul capitalei, zona Unirii este traversată de unul dintre cele mai mari și mai tranzitate bulevarde omonime, care are o lungime de 3 kilometri. Din punct de vedere administrativ, zona Unirii face parte din două sectoare distincte, 3 și 5 și este concentrată în jurul bulevardului cu același nume, întinzându-se de la Dealul Arsenalului până la Piața Alba Iulia.

Zona Unirii găzduiește una dintre cele mai mari clădiri din lume, Palatul Parlamentului, o construcție renumită pentru arhitectura realizată în stil brâncovenesc.

De asemenea, un alt punct de interes din zona Unirii este Centrul Istoric al Bucureștiului, cunoscut și el pentru clădirile construite în stil neoclasic și neobaroc. Aici regăsim unul dintre cele mai apreciate obiective turistice, Hanul lui Manuc, prima curte domnească din București, Curtea Veche, biserica Stavropoleos.

Apartamente și ansambluri rezidențiale în zona Unirii

Pe lângă atracții și obiective turistice, zona Unirii deține atât structuri imobiliare vechi, cu suprafețe generoase și compartimentări eficiente, precum și ansambluri rezidențiale moderne finisaje moderne;

De asemenea, zona Unirii este bine reprezentată în ceea ce privește școlile, grădinițele, accesul rapid la mijloacele de transport în comun,cafenele, teatre și centre comerciale mari precum Unirea Shopping Center. Zona Unirii reprezintă alegerea perfectă pentru investiții imobiliare pentru familii sau persoane cu un stil de viață dinamic.

Disponibilitate proprietate:

Disponibil din 29/11/2025.

Puncte de interes

Mijloace transport
tram-station
11 Iunie
Stații tramvai aprox. 121 m
bus-station
Statia Calea 13 Septembrie, linia 136, N121
Stații autobuz aprox. 286 m
metro-station
Metrorex. Stația Piața Unirii 1 (M1) (en)
Stații metrou aprox. 698 m
trolleybus-station
Statia Facultatea de Drept, linia 61,69,90,91
Stații troleibuz aprox. 1471 m
Școală
kindergarten
Gradinita nr. 192 (Pisicile aristocrate)
Gradinițe aprox. 244 m
kindergarten
Gradinita nr.192, "Pisicile Aristocrate"
Gradinițe aprox. 256 m
school
Liceul de Arte "Dinu Lipatti"
Școli aprox. 335 m
university
Casa Academiei
Universități aprox. 605 m
Recreere
park
Parc
Parcuri aprox. 107 m
supermarket
Mega Image
Supermarket aprox. 294 m
public-square
Piața Constituției
Piețe publice aprox. 394 m
sports-ground
Teren sportiv
Terenuri sport aprox. 953 m

Detalii despre preț și costuri

Costuri cu achiziția

Fără credit
17.487 RON
Credit ipotecar
20.403 RON
Noua casă
2.305 RON+ taxe notariale

i

Costuri adiționale mai puțin știute la achiziție: taxe notariale, comisioane etc.

Proprietăți recomandate

Detalii de contact

SVN Romania | Residentialist | Floreasca

Oana Dumitrascu Associated Advisor

SVN Romania | Residentialist | Floreasca
PRO

Abonează-te la newsletter să fii primul care primește cele mai noi recomandări de proprietăți și sfaturi de la experți.

CONTACT

Creează alertă

Salvează căutarea ca să primești pe email ultimele anunțuri publicate

Case individuale cu 4+ camere de vânzare în zona Unirii, Sector 3