Va prezentam spre vanzare o casa individuala, situata în zona Primariei din Selimbar, cu orientare est-vest. Proprietatea este structurata pe parter, etaj si pod, va fi predata in decursul anului 2026, finalizata la cheie la exterior, si la alb la interior.
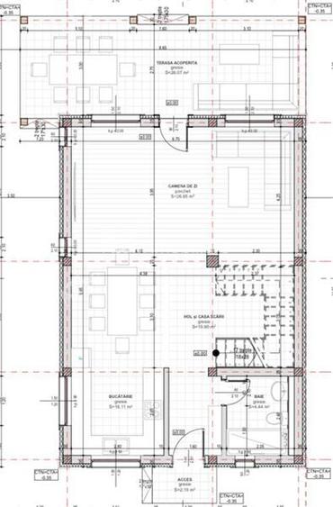
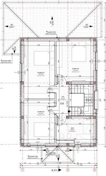
Casa are 120 mp utili, compusi pe parter dintr-o camera de zi generoasa cu o suprafata de 32 mp, bucatarie de 14 mp, o baie de 4 mp, si un hol de acces cu spatiu pentru pantofar si cuier. Etajul este compus dintr-un dormitor matrimonial in suprafata de 16 mp, al doilea dormitor este spatios cu o suprafata de13 mp cel de-al treilea dormitor are o suprafata de 11 mp, fiind o optiune ideala pentru o camera de oaspeti sau o camera pentru copii. Holul cu casa scarii are o suprafata de 23 mp, fiind suficient de mare pentru a se circula fara probleme, baia de la etaj este dotata cu un geam de aerisire si are suprafata de 7 mp, fiind utila si functionala, iar cea de la parter 4 mp. De asemenea, locuinta dispune de un pod, spatiu pentru depozitare, accesibil prin intermediul unei scari rabatabile, cu suprafata de aproximativ 50 mp.
Separat de suprafata utila locuinta dispune de o terasa acoperita in suprafata de 26 mp.
Casa este construita cu zidarie din caramida, izolata termic exterior cu polistiren expandat si zugravita cu tencuiala decorativa.
Casele in interior se predau la stadiu de alb, cu urmatoarele dotari: incalzire in pardoseala, distribuitor, automatizare, pompe la P + E, alimentare pentru termostat in fiecare incapere, instalatii sanitare, instalatii electrice cu tablou si sigurante pe fiecare nivel, centrala termica in condensare, geamuri termopan cu tamplarie PVC de culoare POLAREICHE cu profil de 5 camere, 3 foi sticla, care ofera un confort bun (luminozitate naturala, izoltie fonica cat si termica), peretii in interior sunt tencuiti si zugraviti cu lavabila alba, usa termopan la intrare si usa de acces spre terasa gradina.
Casele pe exterior se predau astfel: izolatie termica cu polistiren de 10 cm, plasa, lavabila de exterior, jgheaburi si burlane legate la pluviala, pervaz la geamuri, alimentare pentru camere de supraveghere si alarma, sistem iluminat exterior, poarta acces pietonal cu alimentare pentru interfon, poarta culisanta pe sina acces auto cu alimentare pentru automatizare. Curtea pavata in zonele de acces pietonal si parcare autoturisme, iar cea din spate tip gradina.
Facilitati in zona: Shopping City Selimbar, scoala,gradinita, magazine alimentare si nealimentare, statii pentru mijloace de transport in comun.
Valoarea de achizitie la stadiul de alb este de 240.000 euro negociabil, se poate achizitiona si prin intermediul unui credit ipotecar. ID intern 3181
Sediul central - Timișoara
Bulevardul Victor Babeș nr. 2, 300230, Timișoara, România
Tel: +40.374.40.44.98 / Fax: +40.256.401.179
Email: suport@imobiliare.ro
Luni - Vineri 08:00 - 20:00
Punct de lucru - București: Iride Business Park, Bld. Dimitrie
Pompeiu 9-9A, Clădirea B2B,
020335, Sector 2, București, România
CONTACT
Sediul central - Timișoara
Bulevardul Victor Babeș nr. 2, 300230, Timișoara, România
Tel: +40.374.40.44.98 / Fax: +40.256.401.179
Email: suport@imobiliare.ro
Luni - Vineri 08:00 - 20:00
Punct de lucru - București: Iride Business Park, Bld. Dimitrie
Pompeiu 9-9A, Clădirea B2B,
020335, Sector 2, București, România
Sună acum și cere detalii sau programează o vizionare.
Cere detalii prin email
*
*
*
*
Stații autobuz
Parcări
Statia Sibiu Grupa Selimbar
aprox.
350 m
Sibiu-Triaj (Sud)
aprox.
1569 m
Parcare
aprox.
1123 m
Parcare
aprox.
1171 m
Parcare
aprox.
1409 m
Parcare
aprox.
1412 m
Înainte să pleci...
Ești sigur că ai văzut și aceste proprietăți?
240.000 €
Sibiu, Aeroport
5 camere
120 mp
504 mp teren
235.000 €
Sibiu, Aeroport
4 camere
108 mp
200 mp teren
235.000 €
Sibiu, Aeroport
4 camere
120 mp
230 mp teren
270.000 €
Județul Sibiu, Șelimbăr
5 camere
168 mp
550 mp teren
380.000 €
Sibiu, Vasile Aaron
4 camere
145 mp
644 mp teren
255.000 €
Sibiu, Aeroport
4 camere
120 mp
420 mp teren
Creează alertă
Salvează căutarea ca să primești pe email ultimele anunțuri publicate
Case individuale cu 4+ camere de vânzare în zona Aeroport, Sibiu
Cere detalii prin email
*
*
*
*
Detaliile tale de contact vor fi partajate cu Atum Imobiliare
Preț total1.234.859 RON (242.186 €)
Costuri cu achiziția11.147 RON
Preț de achiziție1.223.712 RON
Costuri cu achiziția11.147 RON
Comision agenție Întreabă agenţia
Onorariu notarial9.311 RON
Taxă înscriere OCPI1.836 RON
Preț de achiziție1.223.712 RON
Preț locuință1.223.712 RON
TVA 0%Inclus în prețul cerut
Cost total199.842 RON (39.193 €)
Avans (15%)183.557 RON
Cost achitat în prima lună3.006 RON
Costuri cu achiziția13.279 RON
Cost achitat în prima lună3.006 RON
Comision analiză dosar
400 RON - 900 RON
Taxă evaluare imobil(până la)
900 RON
Rata lunară (variabilă)5.451 RON
Asigurare anuală imobil1.224 RON
Arhivă electronică102 RON
Poliță PAD130 RON
Asigurare de viață/lună Costul este variabil. În funcție de banca aleasă, procentul variază între 0.0259% și 0.035% din soldul creditului.
Costuri cu achiziția13.279 RON
Comision agenție Întreabă agenţia
Onorariu notarial9.311 RON
Taxă întabulare OCPI1.836 RON
Autentificare contract credit2.132 RON
Preț de achiziție1.223.712 RON
Preț locuință1.223.712 RON
TVA 0%Inclus în prețul cerut
Preț de achiziție1.223.712 RON
Preț locuință1.223.712 RON
TVA 0%
Inclus în prețul cerut
Avans minim616.955 RON
Credit pe 30 de ani606.757 RON
Cost achitat în prima lună
Taxa evaluare imobil(până la)
900 RON
Rata lunară (variabilă)4.263 RON
Depozit colateral12.789 RON
Comision de garantare FNGCIMM102 RON
Asigurare anuală imobil1.224 RON
Poliță PAD130 RON
Tarif arhivă electronică102 RON
Costuri adiționale1.364 RON + taxe notariale
Asigurare viață și complexă (opțională)Costul este variabil. În funcție de banca aleasă, procentul variază între 0.0259% și 0.035% din soldul creditului
Onorariu notarialconform tarif notarial
Taxă întabulare OCPI1.364 RON
i
Toate valorile de mai sus sunt estimative și nu reprezintă în mod obligatoriu costurile exacte pe care le veți primi de la companiile/instituțiile prin care veți încheia tranzacția.