Descoperă două duplexuri elegante, spațioase și perfect compartimentate, ideale pentru familii care caută liniște, confort și o priveliște neobturată asupra orașului.
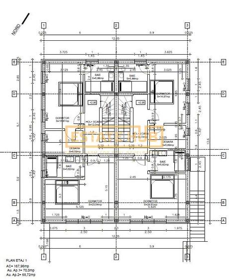
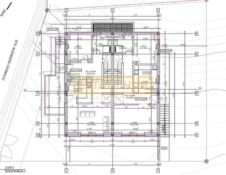
Situate pe strada Alexandru Odobescu, într-o zonă semicentrală liniștită, cu acces facil către toate punctele de interes și expunere sudică, cele două unități oferă 246 mp utili fiecare, construcție nouă 2025. Compartimentarea interioara oferă un amestec perfect de confort și eleganță. Sunt ideale pentru familii sau pentru cei care doresc să locuiască într-o casă spațioasă aproape de toate facilitățile orașului.
Compartimentare inteligentă și funcțională:
-Subsol: garaj pentru 2 mașini, cameră tehnică, spații de depozitare
-Parter: living generos cu acces la terasă, bucătărie open space (posibil de închis), birou / cameră oaspeți, baie, hol cu spațiu de depozitare
-Etaj: 2 dormitoare mari, fiecare cu dressing și baie proprie, priveliște panoramică
-Mansardă: open space cu baie, ideală ca dormitor suplimentar, birou, sală fitness sau loc de joacă
Detalii tehnice și dotări:
-construcție din cărămidă (25 cm) + termoizolație 15 cm
-compartimentari interioare din caramida de 12 cm
-tâmplărie PVC tripan Rehau cu filtru solar (gri antracit)
-centrală Buderus în condensare + încălzire în pardoseală
-aer condiționat în fiecare cameră
-ușă garaj automatizată, gard perimetral
-instalații termice, electrice și sanitare finalizate
-fațade placate cu lemn termotratat
-se predau la stadiul semifinisat, dar va putem ajuta cu finisajele interioare ca si pachet separat.
Materialele folosite sunt de cea mai buna calitate , iar zona este reglementata prin PUZ, destinată exclusiv caselor și duplexurilor, ceea ce asigură o dezvoltare unitară și o priveliște liberă asupra orașului.
Termen finalizare: 2025.
Programează o vizionare și descoperă o locuință pregătită pentru stilul tău de viață.
Sediul central - Timișoara
Bulevardul Victor Babeș nr. 2, 300230, Timișoara, România
Tel: +40.374.40.44.98 / Fax: +40.256.401.179
Email: suport@imobiliare.ro
Luni - Vineri 08:00 - 20:00
Punct de lucru - București: Iride Business Park, Bld. Dimitrie
Pompeiu 9-9A, Clădirea B2B,
020335, Sector 2, București, România
CONTACT
Sediul central - Timișoara
Bulevardul Victor Babeș nr. 2, 300230, Timișoara, România
Tel: +40.374.40.44.98 / Fax: +40.256.401.179
Email: suport@imobiliare.ro
Luni - Vineri 08:00 - 20:00
Punct de lucru - București: Iride Business Park, Bld. Dimitrie
Pompeiu 9-9A, Clădirea B2B,
020335, Sector 2, București, România
Printre principalele artere care străbat această zonă a Clujului se numără, în partea de sud, strada Septimiu Mureșan (aceasta merge, pe bună parte din lungimea sa, paralel cu râul Nadăș); în centrul cartierului se află Strada Dâmbul Rotund "“ de unde îi vine, de fapt, și numele; în nord, Strada Gheorghe Sion și Strada Viile Dâmbul Rotund marchează, practic, limita nordică a cartierului. Comparativ cu alte zone ale Clujului, Dâmbul Rotund este, pe alocuri, destul de deficitar în ceea ce privește infrastructura rutieră. Deși este deservit, ca și alte zone clujene, de o serie de mijloace de transport în comun, zona de nord a cartierului ar necesita extinderea liniilor parcurse de acestea. Dacă vrei să cumperi o proprietate aici, interesează-te, așadar, ce distanță ai de parcurs până la cele mai apropiate stații.
Dacă ești părinte "“ sau deocamdată doar îți dorești să devii "“, cu siguranță că, atunci când vine vorba de alegerea unei locuințe, un aspect important la care te gândești este reprezentat de oportunitățile de educație disponibile într-o zonă sau alta. În această privință, poți să stai liniștit: în Dâmbul Rotund se găsesc, ca și în celelalte subdiviziuni ale orașului de pe Someș, mai multe unități de învățământ. O școală cu tradiție din cartier este Școala Gimnazială "Emil Isac", situată chiar în apropiere de Strada Dâmbul Rotund, din zona centrală. În ceea ce privește oportunitățile de continuare a studiilor după liceu, de menționat este Școala de Agenți de Poliție "Septimiu Mureșan" "“ localizată în zona de sud a cartierului, dar dincolo de cursul râului Nadăș.
Ca și în Gruia, în Dâmbul Rotund nu există, momentan, un mall și nici un hipermarket (lucru cât se poate de firesc, de altfel, ținând cont de faptul că este vorba de un cartier mărginaș și cu o densitate a populației relativ redusă). Locuitorii acestei zone nu sunt, însă, lipsiți de alternative când vine vorba de cumpărături "“ astfel, pentru nevoile de zi cu zi există o serie de magazine de dimensiuni mai reduse, dintre care unele afiliate unor rețele internaționale. Chiar dacă nu strict între granițele cartierului, opțiuni există și pentru aceia care sunt pasionați de shopping. Fără prea mare efort, aceștia pot ajunge rapid în zona Centrală a orașului, unde pot vizita numeroasele magazine existente în materie de fashion (și nu numai).
Dacă ai "“ sau intenționezi să-ți achiziționezi "“ o mașină, parcarea nu ar trebui să reprezinte, în mod normal, o problemă, dată fiind densitatea redusă a populației din acest cartier. Dacă dorești, totuși, să închiriezi un spațiu al tău de la autoritățile locale, te poți interesa la sediul central al Primăriei Clujului (amplasat pe Strada Moților, nr. 3).
Spre deosebire de locuitorii altor zone ale Clujului, cei din Dâmbul Rotund nu au la dispoziție un parc în toată puterea cuvântului, cartierul fiind, în general, deficitar și la capitolul locuri de joacă pentru copii. Totuși, având în vedere multitudinea zonelor verzi, poți spera să găsești câteva trasee bune de plimbare. Dacă ești pasionat de sport, iar mersul pe jos și joggingul nu sunt suficiente pentru tine, în Dâmbul Rotund găsești o oportunitate importantă, cunoscută localnicilor sub numele "Fabrica de Sport". Amplasat în sudul cartierului, în fosta zonă industrială, acesta este considerat a fi unul dintre cele mai moderne complexuri sportive din oraș, fiind deschis atât amatorilor de fotbal, cât și celor de fitness, aerobic, kickboxing etc.
Dacă te gândești să te muți în Dâmbul Rotund, poate că vei fi dezamăgit să afli că aici nu există niciun spital de stat. Nu e cazul, însă, să te descurajezi: având în vedere proximitatea față de Centru, pentru serviciile medicale de urgență poți ajunge rapid la multitudinea de spitale care se găsesc în "inima" orașului: Spitalul Clinic Județean de Urgență Cluj-Napoca, Spitalul Clinic Municipal Cluj-Napoca, Spitalul Universitar C.F. Cluj-Napoca etc. Nu sunt de neglijat, desigur, nici cele câteva cabinete medicale particulare ce pot fi găsite în cartier "“ pe acest segment vei găsi atât câteva opțiuni în materie de medicină de familie, cât și în ceea ce privește anumite servicii medicale de specialitate (stomatologie, spre exemplu).
În afară de câteva fast food-uri de cartier, locuitorii cartierului Dâmbul Rotund beneficiază, în apropierea casei, și de câteva oportunități demne de luat în seamă la capitolul restaurante. De menționat este restaurantul "Stejarul", amplasat pe Strada Corneliu Coposu, nr. 95, ce dispune de terasă și oferă și servicii de livrare la domiciliu, dar și restaurantul "Fabrica", de pe Strada Tudor Vladimirescu, nr. 22, unde pot fi organizate și evenimente. Pentru a beneficia de o gamă mai largă de opțiuni pentru ieșirile în oraș cu prietenii, locuitorii acestui cartier au la dispoziție, desigur, și zona Centrală.
Dacă ai nevoie să efectuezi o operațiune bancară, trebuie să știi că strict între granițele acestui cartier nu prea ai opțiuni la acest capitol. Cu toate acestea, imediat sub limita sudică a cartierului, la granița dintre Gruia și zona Centrală (reprezentată de Strada Horea), se găsesc trei sucursale bancare: una din rețeaua BCR, o Banca Transilvania, alături de un sediu Raiffeisen Bank. Consultă harta și află unde sunt localizate și alte bănci sau ATM-uri în cartierul Dâmbul Rotund:
Înainte să pleci...
Ești sigur că ai văzut și aceste proprietăți?
319.000 €
Cluj-Napoca, Dâmbul Rotund
4 camere
195 mp
445 mp teren
319.990 €
Cluj-Napoca, Dâmbul Rotund
4 camere
195 mp
300 mp teren
275.000 €
Cluj-Napoca, Dâmbul Rotund
4 camere
88 mp
700 mp teren
Creează alertă
Salvează căutarea ca să primești pe email ultimele anunțuri publicate
Duplexuri cu 4+ camere de vânzare în zona Dâmbul Rotund, Cluj-Napoca
Cere detalii prin email
*
*
*
*
Detaliile tale de contact vor fi partajate cu Estate Hub