Teren pentru Parcelare de vanzare in zona Lugojului-Ghiroda

500.000 €
78.99 € / mp

Aeroport, Timișoara

Sup. teren:
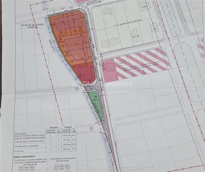
6.330 mp
Tip:
Construcții
  • • Locație aproximativă
  • • Vizionare prin apel video

Descriere teren

LANDMARK ofera spre vanzare cu teren Extravilan in zona LUGOJULUI-GHIRODEI, pe strada CAMPULUI, avand o suprafata de 6330 mp cu 2 deschidere de 56 ml si 230 ml.. Terenul are acces direct spre Calea Lugojului si dispune de toate utilitatile, iar strada este pietruita. Orientare Nord-Sud. Pretul este 500000 euro, 79 euro mp negociabil. ID intern: 210597.
Citește mai mult Citește mai puțin
Electricitate Gaz Canalizare

Detalii teren

ID anunț: X6CI130QB Copiat! 273295299 Copiat!
Actualizat în: 09 Februarie 2026
Clasificare teren: Extravilan
Front stradal: 56 m
Nr. fronturi stradale: 2

Utilități

Destinație
Rezidențial
Amenajare străzi
Pietruite

Puncte de interes

Mijloace transport
bus-station
Romtrans
Stații autobuz aprox. 449 m
bus-station
Ialomitei
Stații autobuz aprox. 770 m
train-station
Halta Ghiroda
Stații tren aprox. 1500 m
trolleybus-station
Statie Arena Aquasport T11
Stații troleibuz aprox. 1856 m
Școală
kindergarten
Gradinita Pygmalion
Gradinițe aprox. 668 m
kindergarten
Gradinita Pygmalion
Gradinițe aprox. 706 m
school
Gradinita Ghiroda (en)
Școli aprox. 785 m
school
Scoala Generala Ghiroda
Școli aprox. 853 m
Recreere
restaurant
Club Senator
Restaurant aprox. 465 m
park
Complex Senator
Parcuri aprox. 520 m
sports-ground
Teren sportiv
Terenuri sport aprox. 546 m
pub
Km0 Pub and Restaurant
Pub aprox. 778 m

Proprietăți recomandate

Detalii de contact

Abonează-te la newsletter să fii primul care primește cele mai noi recomandări de proprietăți și sfaturi de la experți.

CONTACT

Creează alertă

Salvează căutarea ca să primești pe email ultimele anunțuri publicate

Terenuri construcții de vânzare în zona Aeroport, Timișoara