REV2002134 Baneasa - Vila smart in complex rezidential

1.506.000 € + TVA

Băneasa, București

Nr. cam.:
6
Sup. utilă:
470 mp
Sup. teren:
600 mp
Tip prop.:
Individuală
  • • Locație aproximativă
  • • Vizionare prin apel video

Descriere casă

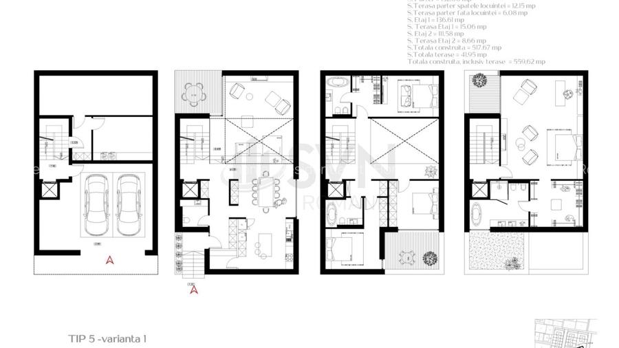
SVN Romania va propune spre vanzare o vila situata in zona Baneasa, intr-un complex rezidential cu circuit inchis, cu deschidere la lacul Grivita. Vila TIP 5 este compusa din D+P+E1+E2 si are in compunnenta 6 camere dispuse astfel: Demisol: garaj pentru 2 masini, camera de depozitare, camera tehnica, hol Parter: living, dinning, bucatarie, baie, spatiu depozitare, hol, terasa Etaj 1: dormitor master cu dressing si baie, 2 dormitoare, baie, terasa, hol Etaj 2: dormitor master cu dressing si baie, 2 terase, hol. Complexul este in faza de executie, primele vile urmand sa fie predate la sfarstul anului 2023. Predarea se va face la stadiul de alb, adica executat integral pe exterior, cu instalatiile de incalzire in pardoseala si racire prin ventiloconvectoare instalate, cu pereti interior vopsiti alb, dar fara gresie, faianta, grupuri sanitare, usi interior sau parchet. Casele ,,smart sunt proiectate pentru a indeplini noile cerinte ale pietei si provocarilor legate de asigurarea confortului, cu un cost echilibrat. Astfel, noile locuinte vor beneficia de pompe de caldura moderne ce vor functiona cu energie electrica si care vor asigura atat incalzirea cat si racirea casei. Pentru a asigura un consum de utilitati cat mai redus, casele vor fi izolate termic la cele mai inalte standarde si vor beneficia de pregatiri de sisteme care sa permita utilizarea inteligenta a resurselor, programarea si controlul de la distanta. Dotarea standard vine cu panouri solare precum si pregatirea pentru instalarea de panouri fotovoltaice, care pot reduce semnificativ impactul financiar al consumului de energie electrica. Complexul este format din vile si blocuri cu regim mic de inaltime si este dotat cu spatii de joaca pentru copii, alei pietonale largi, gradinita, paza 24/24, supraveghere video. Toate casele vor beneficia de curti generoase, cu suprafete de teren care pot varia intre 525 si 775 de metri patrati, fiecare vila beneficiind de minim doua locuri de parcare. Pentru mai multe informatii nu ezitati sa ne contactati.
Citește mai mult Citește mai puțin
Acceptă animale de companie Grădină Centrală proprie 2 Parcări 2 Garaje

Detalii casă

ID anunț: XENT0101O Copiat! 273356917 Copiat!
Actualizat în: 09 Februarie 2026
Suprafață construită: 518 mp
Suprafață desfășurată: 542 mp
Nr. bucătării: 1
Nr. băi: 4
Nr. balcoane: 2
Nr. terase: 2
An construcție: 2023 (În construcție)
Structură rezistență: Beton
Tip imobil: Casă/Vilă
Regim înălțime: D+P+2E

Utilități

Destinație
Rezidențial Birouri Birouri
Izolații termice
Exterior
Ferestre cu geam termopan
PVC
Diverse
Senzor de fum
Alte spații utile
WC Serviciu Spațiu depozitare
Dotări imobil
Interfon Spații agrement
Utilități
Gaze Telefon internațional Apă Canalizare CATV Curent
Acces internet
Cablu Fibră optică Wireless
Servicii imobil
Supraveghere video
Comision
Standard

Vicii:

Fără vicii.

Alte detalii:

Cartier Băneasa, alegerea perfectă pentru achiziția imobilelor

Unul dintre cartierele învecinate cu Aviatorilor, Băneasa este unul dintre cele mai căutate și mai apreciate cartiere bucureștene. În apropierea parcului Herăstrău, Băneasa este zona care dă tonul în materie de achiziții imobiliare.

Acest cartier este potrivit pentru persoane care pleacă des în străinătate, aeroportul fiind în vecinătate. Alcătuit din blocuri construite atât după 1980, cât și în ultimii ani, ansamblurile rezidențiale reprezintă alegerea potrivită pentru familii cu tipuri de venit medii și mari. În această zonă au fost construite mai multe ansambluri rezidențiale precum:

● Greenfield Residence;
● Buena Vista Residencial;
● The Ivy;
● Embassy Residence;
● La Citadela.

Acesta cuprinde multe obiective turistice ale capitalei, cum ar fi Arcul de Triumf, Muzeul Satului, Muzeul de Artă Veche Apuseană, vila Nicolae Minovici.

Zona Băneasa, spații verzi și centre comerciale complete

Cartierul Băneasa este alegerea potrivită pentru iubitorii de natură, fiind amplasat lângă lacul Băneasa și pădurea cu același nume. De asemenea, pe lângă activitățile în natură, cei care își achiziționează o locuință în acest cartier se bucură și de alte facilități precum:

● centrul comercial Băneasa Shopping Center cu peste 250 de magazine;
● acces facil la două dintre cele mai cunoscute aeroporturi din țară, Băneasa și Otopeni;
● acces facil la linia de transport în comun;
● școli;
● spitale.

Disponibilitate proprietate:

Disponibil din 14/10/2025.

Puncte de interes

Mijloace transport
bus-station
Statia Bulevardul Apicultorilor linii : 205,261
Stații autobuz aprox. 358 m
bus-station
Statia Oaspetilor, linia 261
Stații autobuz aprox. 428 m
tram-station
Cartier Damaroaia
Stații tramvai aprox. 1362 m
tram-station
Statie Cartier Damaroaia Tv24
Stații tramvai aprox. 1364 m
Școală
university
Universitatea Biotera
Universități aprox. 200 m
university
Universitatea Bioterra
Universități aprox. 200 m
school
International School for Primary Education
Școli aprox. 334 m
kindergarten
Gradinita
Gradinițe aprox. 1807 m
Recreere
restaurant
Vatra Noua
Restaurant aprox. 411 m
sports-ground
Teren sportiv
Terenuri sport aprox. 1053 m
park
Loc de joaca
Parcuri aprox. 1272 m
supermarket
SELGROS Baneasa
Supermarket aprox. 1546 m

Proprietăți recomandate

Detalii de contact

Abonează-te la newsletter să fii primul care primește cele mai noi recomandări de proprietăți și sfaturi de la experți.

CONTACT

Creează alertă

Salvează căutarea ca să primești pe email ultimele anunțuri publicate

Case individuale cu 4+ camere de vânzare în zona Băneasa, Sector 1