14

Casa individuala - 149 mp util - terasa rooftop cu jacuzzi de 32 mp

287.700 €

Buziașului, Timișoara

Nr. cam.:
4
Sup. utilă:
149 mp
Sup. teren:
191 mp
Tip prop.:
Individuală
  • • Locație aproximativă
  • • Vizionare prin apel video

Descriere casă

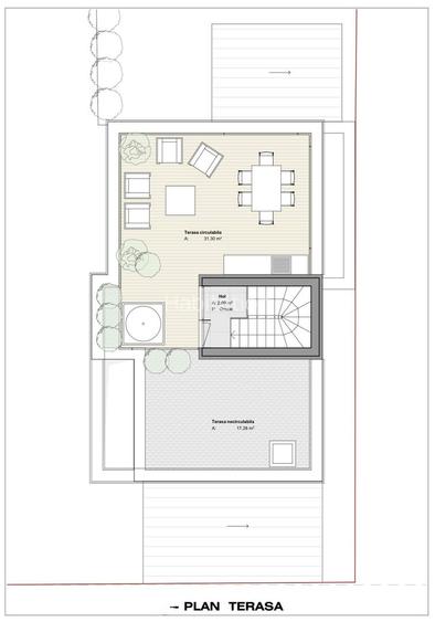
Casă modernă cu terasă panoramică și curte proprie | 3 niveluri de confort și stil- 149 m² utili · 190 m² teren · terasă rooftop · 2 locuri în carport Într-o locație deosebită, această casă cu linii arhitecturale moderne și compartimentare inteligentă îmbină armonios funcționalitatea cu momentele de relaxare. Dispusă pe trei niveluri, casa oferă o zonă de zi generoasă, cu acces direct către curtea proprie, amenajată cu gazon, sistem de irigație și o terasă acoperită perfectă pentru relaxare. Este locuința ideală pentru cei care caută confort, intimitate și un design contemporan. Parter – Inima casei: - Living generos, inundat de lumină naturală - Bucatarie deschisa si luminoasa - Baie - Acces direct către curtea proprie, amenajată cu gazon și sistem de irigație - Terasă acoperită, perfectă pentru dimineți liniștite sau seri relaxante Etaj intermediar – Zona de odihna - 3 dormitoare spațioase și luminoase - 2 băi moderne - Intimitate și confort, atent gândite pentru întreaga familie Ultimul nivel – Terasă panoramică - 32 m² de spațiu circulabil - Pregătită pentru jacuzzi și bucătărie de vară - Cadru perfect pentru socializare, seri cu prietenii sau momente de relaxare sub cerul liber Beneficii: Design contemporan și materiale de calitate Spații optimizate pentru un stil de viață modern Posibilități multiple de amenajare la ultimul nivel Dotări și specificații tehnice - Zidărie Porotherm + izolație Swisspor EPS - Tâmplărie PVC Kommerling cu geam tripan (4 sezoane + argon) - Încălzire în pardoseală cu centrală Buderus + termostate pe zone - Aer condiționat instalat la etaj - Videointerfon, instalație trifazică, pregătire pentru panouri fotovoltaice - Membrană PVC Fatrafol, fațadă ventilată cu cărămidă aparentă Roben - Carport acoperit pentru 2 mașini, curte amenajată complet Finisaje incluse – predare la cheie. Pret - 287.700 euro, usor negociabil. Programează o vizionare și descoperă cum poate această casă să devină locul tău perfect.
Citește mai mult Citește mai puțin
Nemobilat Grădină Curte Aer condiționat Centrală proprie Încălzire prin pardoseală 2 Parcări

Detalii casă

ID anunț: XCP81103I Copiat! 272253259 Copiat!
Actualizat în: 12 Ianuarie 2026
Suprafață desfășurată: 187 mp
Nr. bucătării: 1
Nr. băi: 3
Nr. terase: 2
Suprafață terase: 32 mp
Învelitoare acoperiș: Tabla
An construcție: 2025 (Finalizată)
Structură rezistență: Cărămidă
Regim înălțime: P+1E

Utilități

Pereți
Faianță Vopsea lavabilă
Podele
Gresie Parchet
Ușă intrare
PVC
Uși interior
Celulare
Izolații termice
Exterior
Ferestre cu geam termopan
PVC
Contorizare
Apometre Contor gaz
Diverse
Telecomandă poartă acces auto
Dotări imobil
Acoperiș Interfon
Utilități
Curent Apă Canalizare CATV Gaze Telefon
Acces internet
Cablu Wireless
Amenajare străzi
Iluminat stradal Mijloace de transport în comun Asfaltate
Comision
standard

Vecinătăți:

World Class, Continental Automotive, Draxlmaier Group, Supermarket Auchan, Guau Cafe

Disponibilitate proprietate:

Imediat

Puncte de interes

Mijloace transport
tram-station
Statie Ciarda Rosie Tv4
Stații tramvai aprox. 154 m
tram-station
Statie I.O.T. Tv4
Stații tramvai aprox. 388 m
bus-station
Continental
Stații autobuz aprox. 557 m
trolleybus-station
Statie B-dul Sudului T16
Stații troleibuz aprox. 1698 m
Școală
school
Colegiul Tehnic Electrotimis
Școli aprox. 456 m
kindergarten
Gradinita Program Normal Nr. 6
Gradinițe aprox. 469 m
school
Scoala Gimnaziala nr. 20
Școli aprox. 469 m
kindergarten
Gradinita Program Prelungit nr.38
Gradinițe aprox. 807 m
Recreere
sports-ground
Teren sportiv
Terenuri sport aprox. 424 m
bar
Club As
Bar aprox. 694 m
supermarket
Profi
Supermarket aprox. 734 m
park
Parc
Parcuri aprox. 779 m

Detalii despre preț și costuri

Costuri cu achiziția

Fără credit
12.776 RON
Credit ipotecar
15.110 RON
Noua casă
1.606 RON+ taxe notariale

i

Costuri adiționale mai puțin știute la achiziție: taxe notariale, comisioane etc.

Proprietăți recomandate

Detalii de contact

Habitation

Catalina Lombrea Associate Partner

4.78(13 review-uri)

Habitation
PRO

Abonează-te la newsletter să fii primul care primește cele mai noi recomandări de proprietăți și sfaturi de la experți.

CONTACT

Creează alertă

Salvează căutarea ca să primești pe email ultimele anunțuri publicate

Case individuale cu 4+ camere de vânzare în zona Buziașului, Timișoara